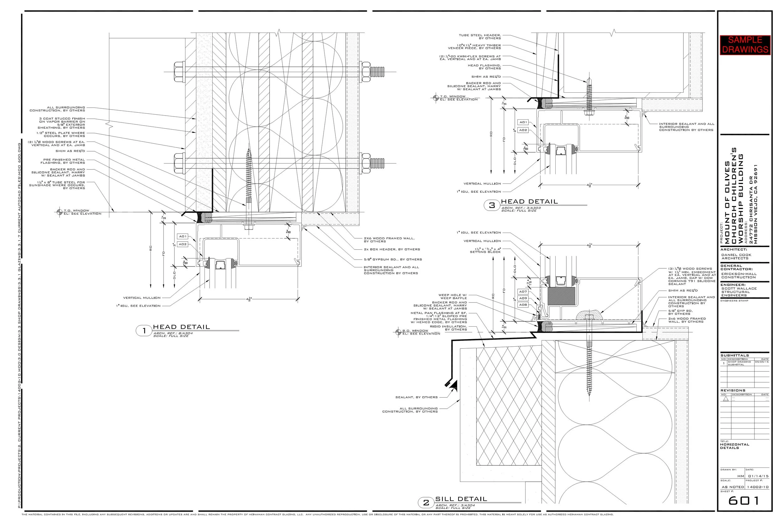
Shop Drawings for Storefront
Best viewed on PC or landscape orientation

